124B Dexter Circle Madison, AL 35757
1,856 Sq.Ft.
4 Beds
2.5 Baths
2 Car
About The Home
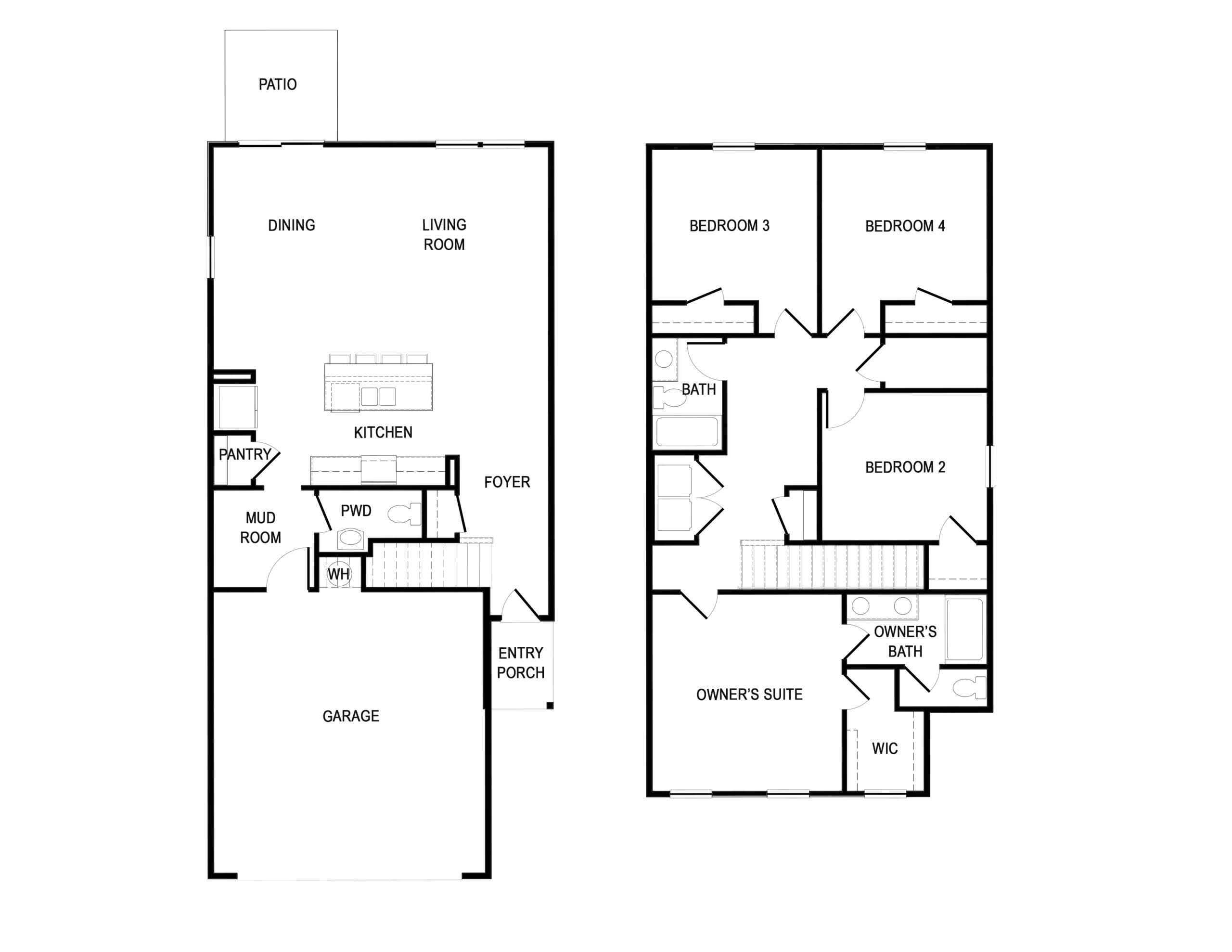
Under Construction-The perfect blend of space, privacy, and community! Situated on a beautiful half-acre lot, this home gives you the privacy you crave with mature trees lining the entire backyard. Inside, the open-concept design shines! The spacious kitchen, complete with a fantastic center island, flows perfectly into the living area, making it the ultimate spot for family meals and easy entertaining. Upstairs, you’ll find four comfortable bedrooms offering a peaceful retreat for everyone. Plus, the convenience is unbeatable: an upstairs laundry room & spacious mudroom work hard to keep daily life simple and organized. Less than 10 minutes away from Clift Farms!
This Home Features:
-
Situated on a spacious half-acre lot with mature trees along the entire backyard for added privacy and a natural setting
-
Bright and inviting open-concept layout perfect for modern living
-
Large kitchen with center island, ideal for meal prep, gatherings, and effortless entertaining
-
Seamless flow from the kitchen to the expansive living area
-
Four generous bedrooms upstairs, providing peaceful, private retreats for everyone
-
Convenient upstairs laundry room for everyday ease
-
Spacious mudroom designed to keep your home organized and clutter-free
-
Prime location less than 10 minutes from Clift Farms—close to shopping, dining, and everyday essentials
Floor Plans
The Birch Plan
Have questions?
we can help.
put new form here
*This estimate is based on a 6.5% interest rate and includes principal and interest only. Credit terms are based on a 30-year fixed mortgage with 3% money down. It is provided for informational purposes and does not constitute a loan offer, credit approval, or commitment to lend. Actual rates and terms may vary based on creditworthiness, documentation, and market conditions. All programs, rates, terms, and conditions are subject to change without notice. All loans are subject to credit approval by a qualified lender.







